Marszewo, czyli potencjał drewna
Budynek Edukacyjny w Leśnym Ogrodzie Botanicznym Marszewo powstał z idei promocji nowoczesnego budownictwa drewnianego oraz projektowania ukierunkowanego na tworzenie interakcji między ludźmi i naturą. Te światy płynnie się łączą, przenikają, pozwalając na synergię.


Projekt wyłoniono w konkursie architektonicznym zorganizowanym w 2015 r. przez Nadleśnictwo Gdańsk pod patronatem SARP Wybrzeże. Koncepcję doceniono za jakość architektury, spójność rozwiązań oraz pomysł na zagospodarowanie terenu z kompozycją rozproszonej zabudowy „zagrodowej”. Projekt zwracał uwagę zastosowaniem prefabrykatów z drewna klejonego krzyżowo (CLT), co uczyniło go pierwszym w Polsce obiektem publicznym zaprojektowanym i zrealizowanym w tej technologii. Charakterystyczna fasada z opalanych desek stała się rozpoznawalnym znakiem budynku i spopularyzowała oryginalne rozwiązanie.
Leśny Ogród Botaniczny Marszewo
Marszewo to niewielka osada leśna znajdująca się w granicach Gdyni oraz na terenie Trójmiejskiego Parku Krajobrazowego. Leśny Ogród Botaniczny położony jest na polanie ciągnącej się wzdłuż ul. Marszewskiej. Tworzą go ścieżki i kolekcje roślin: łąki, krzewy, sady oraz zewnętrzna sala edukacyjna. Różnorodność biologiczna promowana jest w całym ogrodzie – część leśna i większość kolekcji prezentują gatunki rodzime, typowe dla Pomorza Gdańskiego. Nadrzędną wartością flory pozostaje jej naturalny charakter – poza kolekcjami roślinność funkcjonuje jako „dziki ogród”, w którym spontanicznie pojawiające się lokalne gatunki mogą swobodnie się rozwijać.
LOB Marszewo organizuje zajęcia dla najmłodszych, kierowane zarówno do szkół, jak i mieszkańców miasta. Część wydarzeń dotyczy edukacji dla zrównoważonego rozwoju, inne mają charakter praktyczny – dzieci rysują czy majsterkują. Nowy obiekt miał poszerzyć funkcjonalność ogrodu, wprowadzając przestrzeń łączącą miejsca pracy i działania edukacyjne.











Ideą powstania budynku edukacyjnego było stworzenie obiektu służącego potrzebom leśników i uczestników zajęć, poszerzającego ofertę edukacyjną Leśnego Ogrodu, a zarazem promującego zrównoważoną architekturę.
W oczekiwaniu na realizację
Projekty budowlany i wykonawczy opracowano w 2016 r., a w tym samym czasie uzyskano pozwolenie na budowę. Realizację opóźniły pierwsze, nieudane przetargi, wynikające z trudności w znalezieniu generalnego wykonawcy gotowego podjąć się zastosowania nietypowej konstrukcji. Technologia wymagała opracowania w odniesieniu do konkretnego producenta i jego systemu, wraz z odpowiednią dokumentacją. Architekci nawiązali współpracę z firmą KLH – renomowanym austriackim producentem budynków w technologii CLT – która zaproponowała swojego projektanta w Polsce, Lecha Mikułę, co umożliwiło przygotowanie właściwej dokumentacji. Na sukces przetargu inwestycja musiała poczekać do końca 2020 r., kiedy to wybrano Przedsiębiorstwo Budowlane TB.INVEST. Tymczasem firma zyskała polskie przedstawicielstwo – OMFO – dzięki czemu możliwe było użycie produktu również na etapie realizacji. Zdecydowana większość inwestycji z CLT powstaje w Austrii, Holandii i Niemczech oraz pojedynczo w innych miastach Europy. Do 2023 r., czyli do realizacji budynku w LOB Marszewo, nie odnotowano żadnego obiektu tego typu w Polsce.
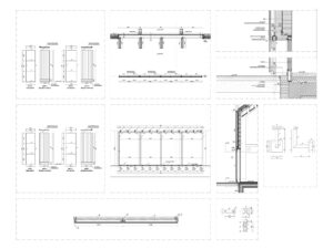
Drugi trudny element projektu stanowiła elewacja z desek opalanych. O ile na świecie były realizowane budynki w takim wykończeniu, w Polsce w 2016 r. opalane drewno spotykano jedynie w rozwiązaniach wnętrzarskich. Wówczas istniało również niewiele firm, które zajmowałyby się wykonywaniem produktu jako elewacji. Jednocześnie w przypadku budynku użyteczności publicznej należy wykonać zgodnie z przepisami fasadę jako NRO – nierozprzestrzeniającą ognia. O ile można zakupić produkt, który zabezpieczy naturalną deskę drewnianą, o tyle surowiec poddany płomieniom ognia nie jest – zgodnie z nomenklaturą prawną – uważany za drewno naturalne, a więc nie można było uznać, że po pokryciu impregnatem spełni wymogi przepisów. Dzięki współpracy z lokalną firmą Custom Zole udało się przygotować próbki fasady, które zostały wykorzystane zarówno do oceny estetycznej rozwiązania, jak i do badań w Instytucie Techniki Budowlanej. Ostatecznie uzyskane zostało jednostkowe dopuszczenie deski pokrytej konkretnym produktem, który zapewnił oczekiwane parametry odporności ogniowej.
Ostatnim wyzwaniem, jakie napotkała inwestycja, był trudny okres, w jakim nastąpiła realizacja, gdy niedługo po rozpoczęciu prac ziemnych doszło do agresji Rosji na Ukrainę. Skutki konfliktu – te polityczne, jak i gospodarcze – miały wpływ na logistykę i koszty budowy. Dzięki ścisłej współpracy pomiędzy inwestorem, architektami a generalnym wykonawcą możliwe było ukończenie inwestycji bez widocznych kompromisów i ograniczania założeń koncepcji.
Leśne siedlisko
Nowy budynek został zrealizowany dokładnie w miejscu wyburzonego obiektu, przy założeniu jak najmniejszego wpływu na zastany, naturalny ekosystem i wraz z uniknięciem zaburzenia bioróżnorodności zbytnią urbanizacją. Projektowane zagospodarowanie przewidywało pozostawienie znacznej powierzchni zielonej oraz zastosowanie nawierzchni przepuszczalnych, aby nie naruszyć gospodarki wodnej – część wód opadowych jest odprowadzana do pobliskiego oczka wodnego.
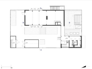
Aby uniknąć realizacji wielkogabarytowego obiektu, zagospodarowanie tworzy zespół rozproszonych brył, spiętych jednorodnym ogrodzeniem, które wyznacza dwa różne w charakterze dziedzińce. Wszystkie wejścia do budynku odbywają się poprzez składane bramy. Pierwszy dziedziniec stanowi strefę wejściową i równocześnie przejście do ogrodu – w jego centrum znajduje się drewniane patio z ławkami i towarzyszącą zielenią. Drugi ma charakter bardziej kameralny – dostępny przez hol budynku, zlokalizowany za tarasem i niewielkim amfiteatrem, będącym miejscem spotkań i zajęć pod chmurką.
Ogrodzenie, inspirowane dawnym wałem obronnym, czyni całość kameralną i ogranicza dostęp osobom postronnym. W zależności od funkcji pomieszczeń w elewacjach pojawiają się przeszklenia, często przysłonięte okiennicami. Okiennice mają kilkusetletnią tradycję w kulturze polskiej: montowano je na elewacjach pałaców, zdobiły fasady szlacheckich dworów, a w przypadku wiejskich chat dodawały im uroku. Ich funkcja nie ograniczała się jedynie do ochrony przed pogodą, ale także przed intruzami. W efekcie cały zespół w wyrazie bliższy jest zabudowie zagrodowej niż typowemu obiektowi użyteczności publicznej.
Czarna stodoła
Bryły tworzące zabudowę to kubatury nawiązujące do wzorca tzw. nowoczesnej stodoły. Motyw ten, obecny dziś w wielu realizacjach, nie tylko mieszkalnych, przywołuje formę wydłużonego prostokąta z dwuspadowym dachem, najczęściej pozbawionym okapu. W projekcie skala i charakter każdej z brył zostały dostosowane do ich funkcji.
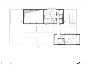
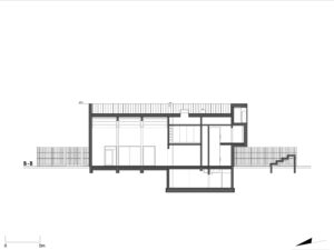
Główny budynek tworzą dwie największe kubatury połączone szklaną przełączką. W pierwszej, wejściowej, zaprojektowano hol z recepcją oraz salę wielofunkcyjną na piętrze. Druga mieści przestrzeń ekspozycyjno-konferencyjną o dwóch wysokościach. W wyższej części przewidziano organizację spotkańi wydarzeń związanych z działalnością ogrodu. Niższa pomieści ekspozycję poświęconą bioróżnorodności lasów trójmiejskich – zarówno typowym gatunkom roślin i zwierząt, jak i tym najcenniejszym przyrodniczo. Różnorodność ta będzieprezentowana także w formie multimedialnej dzięki systemowi audiowizualnemu. Nad niższą częścią sali znalazła się strefa biurowa – komfortowe miejsce pracy leśników, z wydzieloną salą spotkań i zapleczem socjalnym.
Układ przeszkleń podporządkowano funkcji wnętrz. Największe otwarcia pojawiły się na parterze (odsłaniają hol) oraz w przestrzeni wielofunkcyjnej na piętrze, w nadwieszonej części bryły widocznej od strony ogrodu. Część okien osłonięto okiennicami, które umożliwiają manualną kontrolę ilości światła i pozwalają całkowicie zamknąć bryłę. W sali ekspozycyjno-konferencyjnej są one pełne, a w przestrzeni biurowej – ażurowe. To rozwiązanie stanowi również świadome nawiązanie do regionalnej tradycji, w której drewniane okiennice były elementem charakterystycznym.
Prostotę formalną dopełnia estetyka fasady wykończonej opalanymi deskami modrzewiowymi, nadającymi całości unikatowy charakter. Poddane płomieniom drewno sprawia, że każda deska jest inna. Rozwiązanie to ma również walor edukacyjny, pokazuje bowiem współczesne możliwości wykorzystania drewna, wpisując się w ideę budynku jako miejsca nauki i odkrywania.
Przede wszystkim drewno
Projekt w swoim charakterze wpisuje się w założenia zrównoważonego rozwoju, którego ekologicznym, ekonomicznym i społecznym łącznikiem jest przede wszystkim drewno. Jego nadrzędną wartością pozostaje niski ślad węglowy – produkty i rozwiązania konstrukcyjne oparte na drewnie są ekologiczne i zapewniają podwójną ochronę klimatu.
Jednym z kluczowych założeń zrównoważonego rozwoju jest wykorzystywanie potencjału lokalnego, wynikającego z uwarunkowań środowiskowych, przyrodniczych i kulturowych. To świadomy wybór lokalnych surowców, tradycyjnego rzemiosła i regionalnego dziedzictwa, połączony z poszukiwaniem współczesnych odniesień do historycznej zabudowy. W projekcie ta lokalność objawia się powrotem do architektury drewnianej – nowoczesną interpretacją budownictwa zagrodowego. Wybrano technologię CLT, którą zastosowano zarówno do konstrukcji, jak i do wykończenia wnętrz, wpływając równocześnie na ekonomię inwestycji. CLT wyróżniają wysoka wytrzymałość przy niewielkich przekrojach, znakomite parametry akustyczne i termiczne oraz krótki czas montażu dzięki prefabrykacji. Zaawansowany proces produkcji i suszenia eliminuje ryzyko pojawienia się owadów, grzybów czy innych szkodników. Grubość elementów i liczba warstw zależą przede wszystkim od wymagań konstrukcyjnych i przeciwpożarowych.
Wybór drewna miał znaczenie również ze względu na aspekt biofiliczny. Projektowanie biofiliczne – oparte na założeniu, że miłość do życia jest fundamentalną potrzebą wszystkich istot – poszukuje relacji między człowiekiem a naturą. W architekturze wyraża się to poprzez tworzenie możliwości kontaktu z przyrodą: bezpośrednich, pośrednich, a także wynikających z samego miejsca i przestrzeni. Taki kontakt powinien być aktywny i wielozmysłowy, co stało się jednym z głównych punktów wyjścia dla założeń projektowych zrealizowanych w obiekcie.
Budynek dzięki swojej lokalizacji oferuje bezpośredni kontakt z naturą – z leśnym pejzażem i polaną ogrodu, który w założeniu ma pozostać dziki w swojej przyrodniczej charakterystyce. Nieopodal znajduje się oczko wodne, a w zasięgu są leśne ścieżki. Z wnętrz obiektu odbiorca pozostaje w stałym kontakcie widokowym z florą i fauną, a fizyczny kontakt z naturą umożliwiają dwa dziedzińce o odmiennym charakterze.
Kontakt z drewnem w jego szerokiej odsłonie oferuje pośrednie obcowanie z naturą. Materiał zastosowany we wnętrzach wpływa pozytywnie na komfort – kojarzy się z ciepłem i bezpieczeństwem. Jego bliskość, widok, tekstura i zapach działają na zmysły, wzmacniając odbiór przestrzeni.
Budynek nie ukrywa swojej konstrukcji. Poza główną salą ekspozycyjną, gdzie wprowadzono panele akustyczne, wszystkie pozostałe pomieszczenia pozbawione są sufitów podwieszanych, eksponując też część technologiczną. Widoczne pozostają stalowe łączniki elementów drewnianych z płytą fundamentową oraz między sobą. Prefabrykaty CLT tworzą wykończenie wnętrz, odsłaniając zarówno swoją rolę konstrukcyjną, jak i warstwową strukturę – w zależności od układu widać kierunki usłojenia, ponad otworami ujawniają się belki, a w stropach przekroje płyt. Wierzchnia warstwa zachowuje naturalny koloryt i fakturę.
Wskazanie naturalnych materiałów rozszerzono również na elementy wyposażenia: drzwi, stolarskie rękodzieła tworzące zabudowy – również z płyt warstwowych – oraz meble ruchome od polskich producentów, w przypadku których prym wiedzie drewno.
W efekcie budynek to osadzone w lokalnej kulturze, jak i wpisujące się neutralnie w leśny pejzaż współczesne siedlisko, aktywne społecznie miejsce edukujące najmłodszych o leśnej florze i faunie oraz pośrednio o tym, jak nieodwracalne jest budownictwo i co zrobić, aby nie pogarszać świata, w którym przyszło im
dorastać.










